
Hệ thống xử lý nước thải sinh hoạt sử dụng công nghệ sinh học giúp xử lý hiệu quả nguồn nước thải sinh hoạt. Trong các khu công nghiệp việc xử lý nước thải sinh hoạt không còn xa lạ gì, vì hiện nay việc bảo vệ môi trường là vô cùng cần thiết vì vậy việc xây dựng hệ thống xử lý nước thải sinh hoạt giúp xử lý lượng nước.
Tham khảo thêm các sản phẩm khác.
- ==> Hệ thống xử lý nước thải sinh hoạt
- ==> Thiết bị làm mềm nước.
- ==> Thiết bị lọc nước máy.
- ==> Thiết bị lọc nước giếng khoan.
- ==> Thiết bị lọc nước sông
Đặc điểm chung nước thải sinh hoạt.

Nước thải sinh hoạt thường phát sinh từ 03 nguồn chính.
Nước thải được chia thành 3 loại:
- Nước thải từ khu vệ sinh.
- Nước thải từ khu nhà bếp.
- Nước thải từ rửa lau rửa sàn nhà.
Nước thải từ khu vệ sinh thường là nguồn nước thải chứa nhiều các tập chất lơ lửng ( SS ), các hợp chất hữu cơ ( COD, BOD ) và có hàm lượng NH4 cao do quá trình đào thải của con người. Nguồn nước thải này được coi là nguồn ô nhiễm nhất trong nước thải sinh hoạt.
Nước thải từ khu nhà bếp tuy không ô nhiễm bằng nguồn nước thải từ khu vệ sinh, nhưng chúng có đặc điểm là thường có nhiều dầu mỡ và các loại rác thải.
Nước thải từ khu vực lau rửa sản nhà thường mang theo một lượng lớn chất tẩy rửa và các chất sát trùng.
Giới thiệu về hệ thống xử lý nước thải sinh hoạt.

Hệ thống xử lý nước thải sinh hoạt được xử lý qua các đơn vị xử lý sau:
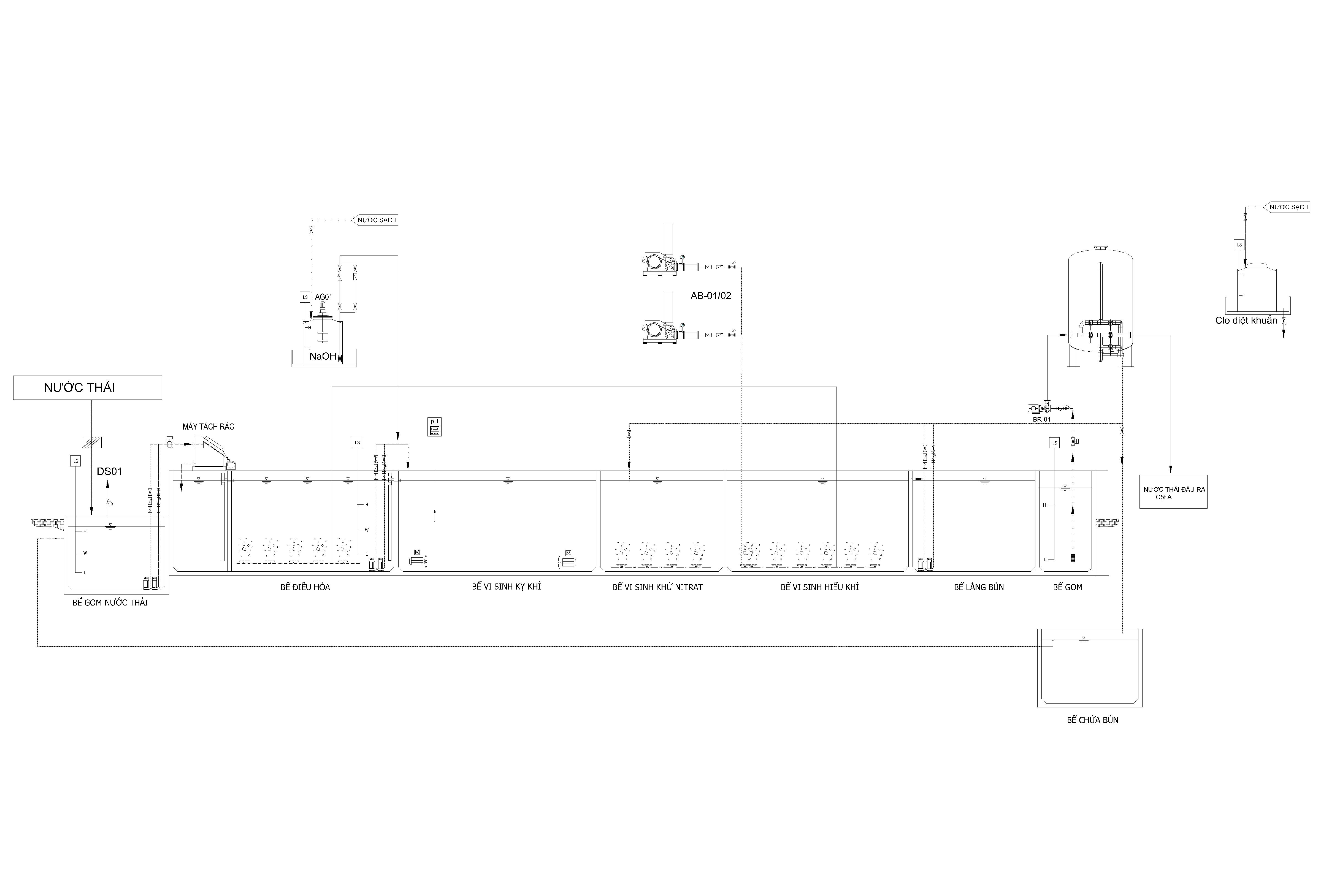
Nước thải sinh hoạt ==> Bể phốt ==> Bể gom nước thải ==> Bể điều hòa lưu lượng ==> Bể sinh học kỵ khí ==> Bể sinh học khử nitrat ==> Bể sinh học hiếu khí ==> Bể lắng bùn ==> Bể chứa trung gian ==> Bể lọc áp lực ==> Bể khử trùng ==> Xả thải ra môi trường.
Thuyết minh sơ bộ về hệ thống xử lý nước thải 400m3/ngày đêm.
Nước thải sinh hoạt được thu gom theo các đường ống nhựa uPVC DN 125mm dẫn về bể phốt, do có cao độ khác nhau nên ống thoát được đặt có độ dốc giúp lượng nước thải thoát nhanh không bị tắc. Nước thải được dẫn về bể phốt 3 ngăn giúp loại bỏ lượng cặn nặng có trong nước thải, sau đó được dẫn theo đường ống nhựa uPVC DN 1400mm về bể gom nước thải.
Bể gom nước thải được lắp đặt máy bơm công suất 1,5Kw có cánh cắt rác giúp cho máy bơm hoạt động ổn định ít khi bị rác làm tắc máy bơm, lượng nước được dẫn theo đường ống nhựa uPVC DN 75mm dẫn về máy tách rác tinh, máy tách rác có lưu lượng xử lý 25m3/giờ phù hợp với hệ thống, lượng rác thải được tách ra sẽ chứa vào ngăn chứa rác thải, lượng nước thải sẽ đưa về ngăn trung gian theo đường ống nhựa uPVC DN 125mm.
Nước sau khi đi qua bể trung gian được dẫn theo đường ống nhựa uPVC DN 125mm chảy sang bể điều hòa, bể điều hòa được lắp đặt hệ thống đĩa phân tán khí thô DN 110mm giúp hòa trộn đồng đều dòng nước thải. Nước ở bể điều hòa được máy bơm chìm công suất 1,1Kw có lưu lượng 15 - 28m3/giờ đưa lên bể điều tiết lưu lượng, máy bơm chìm được điều khiển bằng phao báo mức khi mực nước thấp sẽ cắt máy bơm, khi mực nước đầy sẽ kích hoạt cho máy bơm hoạt động. Bộ điều tiết lưu lượng sẽ ổn định lưu lượng xử lý 18m3/giờ, lượng nước thừa sẽ hoàn lưu về bể điều hòa.
Nước được dẫn theo đường ống nhựa uPVC DN 125mm dẫn xuống đáy bể kỵ khí, dưới đáy bể kỵ khí được lắp đặt 02 máy khuấy trộn chìm công suất 2,2Kw có lưu lượng 300 - 380m3/giờ giúp khuấy trộn dòng nước thải với bùn hoạt tính hoàn lưu, lượng nước sạch được thu trên mặt bể theo ống nhựa uPVC DN 140mm chảy tự do sang bể sinh học khử nitrat, bể sinh học khử nitrat được lắp đặt hệ thống đĩa phân phối khí tinh DN 270mm giúp đưa lượng khí vào trong nước thải giúp vi sinh vật có nhiều ô xy để hoạt động, trong bể vi sinh khử nitrảt được bố trí lớp vật liệu mang vi sinh có diện tích bề mặt lớn từ 3000 - 600m2/m3 giúp làm tang diện tích bề mặt cho bể xử lý. Lượng nước thải sạch được thu trên bề mặt bể theo song chắn vật liệu vi sinh bằng inox sus 304, lượng nước thải được dẫn theo ống nhựa uPVC DN 140mm dẫn sang bể vi sinh hiếu khí, dưới đáy bể được lắp đặt đĩa phân phối khí tinh DN 270mm của Đức, ở bể này được cung cấp các giá thể vi sinh dạng sợi chuyên dùng, có độ bền cao. Nước được thu trên bề mặt bể và dẫn sang bể lắng hóa lý theo đường ống nhựa uPVC DN 140mm, sau đó được đưa vào bể phản ứng, bể phản ứng được cung cấp hóa chất PAC giúp keo tụ lượng bùn lơ lửng có trong nước thải. Nước thải được dẫn theo ống lắng trung tâm đi xuống đáy bể lắng. Lượng bùn lắng được máy bơm chìm 750W đưa về bể chứa bùn, một nửa được đưa về bể vi sinh kỵ khí làm bùn hoạt tính.
Nước sạch sẽ được thu trên bề mặt bể lắng dẫn sang bể trung gian, bể trung gian có chức năng chứa nước sau xử lý, lượng nước này được máy bơm đặt cạn hút đẩy vào bể lọc áp lực giúp loại bỏ lượng cặn bẩn có trong nước thải sinh hoạt. Lượng nước sạch sau xử lý được dẫn về bể khử trùng để loại bỏ vi khuẩn trước khi được xả ra ngoài môi trường.
Mọi thông tin xin liên hệ
Công Ty TNHH Công Nghệ Môi Trường ADC Việt Nam
Địa chỉ: Số 16 Ngõ 295 Yên Duyên - Yên Sở - Hoàng Mai- Hà Nội.
Hotline: 033 337 5696
Website: Yeumoitruong.com.vn - Loccongnghiep.vn
Cảm ơn quý khách đã ghé thăm website công ty chúng tôi.









